Stenslandshuset. Storgata 35

Fakta om prosjektet
Årstall:2024
Beliggenhet:Bryne
Størrelse:194 m2 BRA
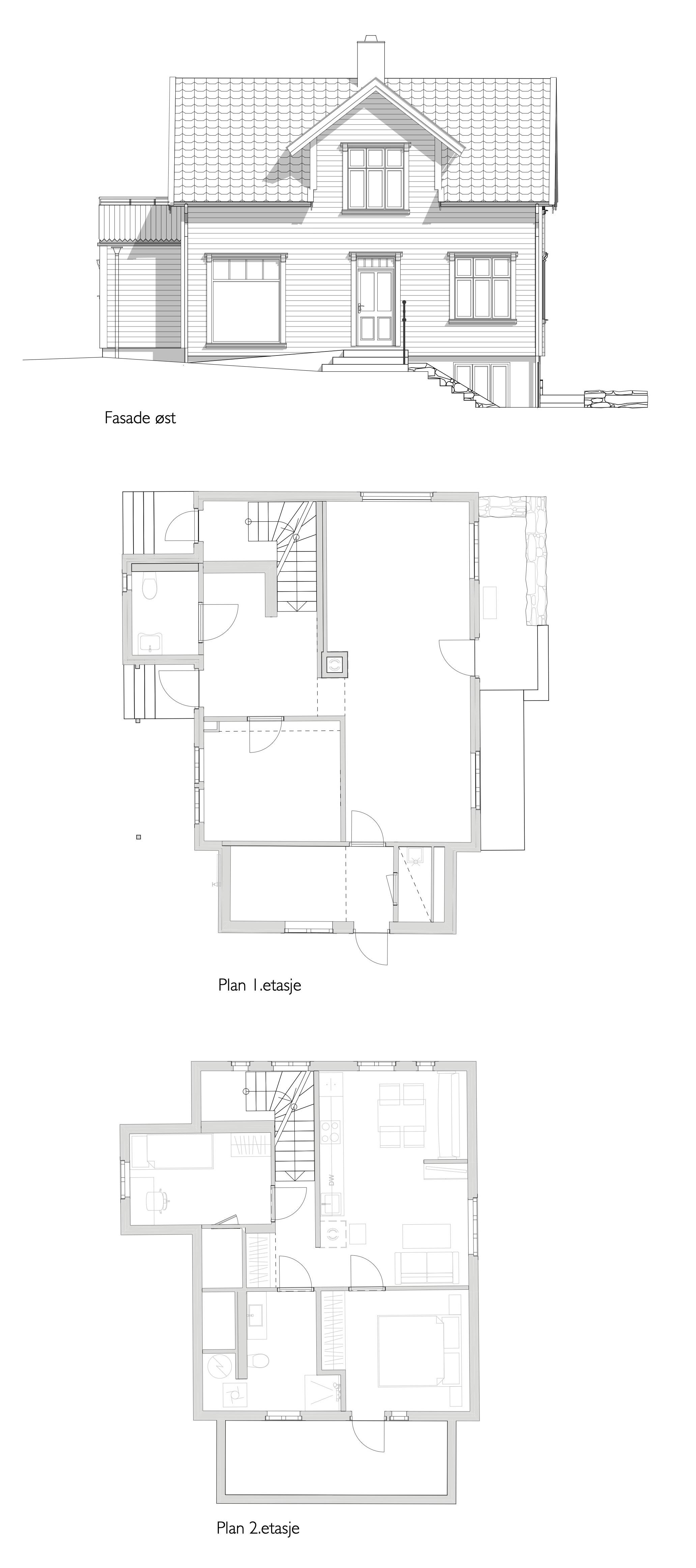
Stenslandshuset i Storgata 39, Bryne et lite kjøpmannshus som med sin fasade i sveitser stil har satt sitt preg i Bryne nedre stasjon i generasjoner. Huset er av oppført i 1918 av tømmer med 2 etasjer og en lav kjeller. Det vært i daglig bruk som forretningslokale via lav steintrapp mot gaten og som leilighet i 2. etasje.
Som en del av byutviklingsprosjektet ved området Aarresmia ble det 40 tonn tunge huset løftet med kran til ny vanntett grunnmur ved elven 50m fra den gamle adressen.  Her ble huset grunnleggende restaurert med justerte planer for næringsdel og boligen i 2. etasje. Huset fikk tak og etasjeskillere forsterket og klimaskall ble isolert samt nye stilriktige vindu med kittfals og beslag. Huset ble bygget opp med nye tekniske anlegg og ventilasjon tilpasset båre nærings- og boligdrift.
Sentralt i dette gjenoppbyggings arbeidet har hensynsynet til stilhistorie vært der vi har laget nødvendige tilbygg for å skape plass til tekniske anlegg og rom for arbeidstilsynets krav om personalrom samt ønske om en soleksponert veranda for boligen i 2. etasje.  Huset har kopi av stilrikteige vindusgerikter, tradisjonelt liggende trekledning med staff og linoljemalte fasader.
I et tun sammen med Aarresmia utgjør disse bygningene en historiske klynge ved Fritz Røeds skulpturpark som viser hvordan bebyggelse langs Storgaten ble oppført da Stasjonsbyen Bryne ble etablert etter 1878.
 
ADDE605E-DBB9-40DC-AF15-F515C4889290_1_201_a
Uten%203172-19%20Planeer%20og%20fasade
7600B5FB-1CA8-4F88-A28D-5F75E7114651_1_201_a
314272CF-FD1B-4497-ADFA-5824A33ED6DE_1_201_a
572A5357-AEFF-4433-B73F-38FD95629F71_1_201_a