Solbakkane

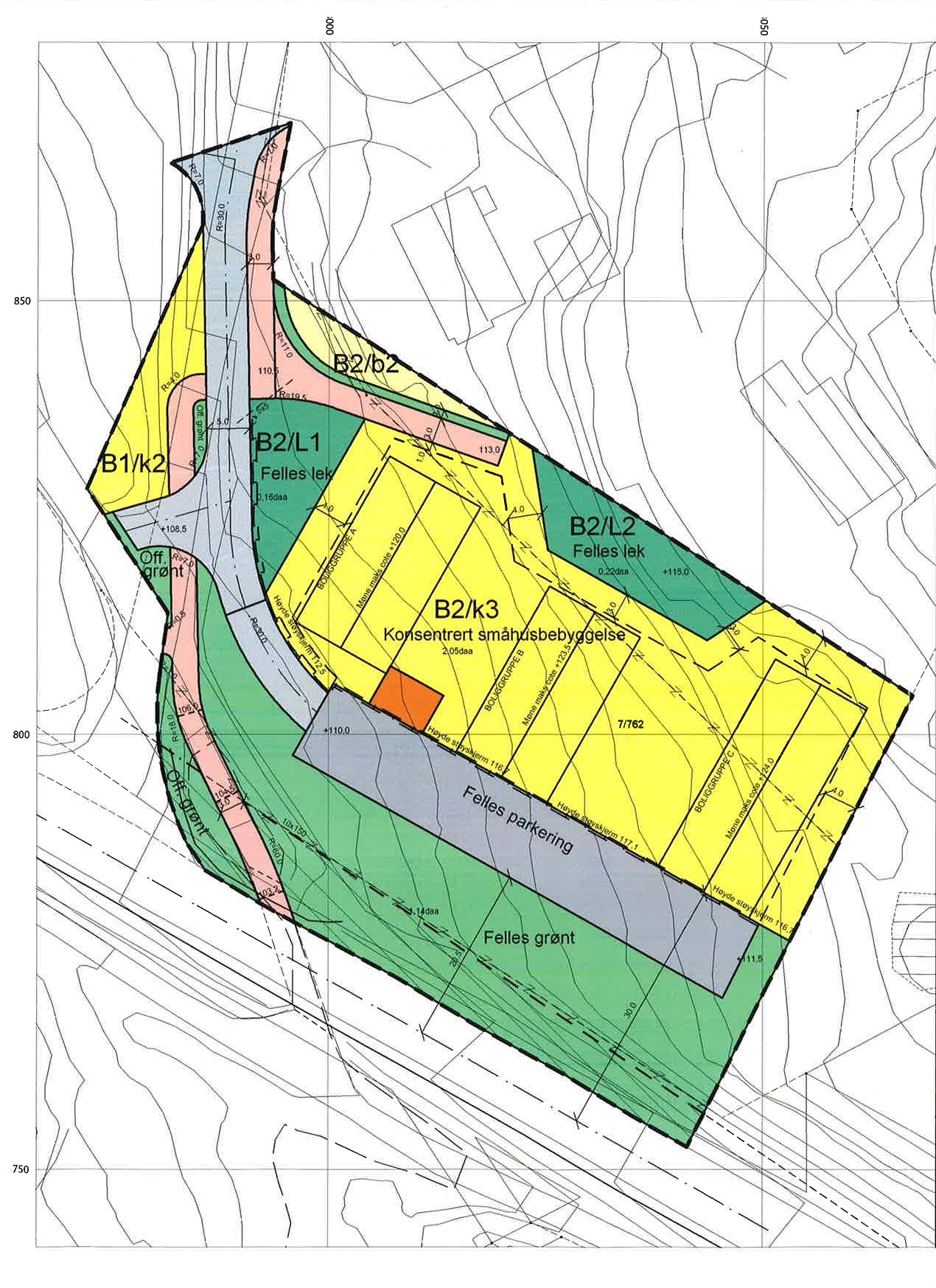
Solbakkane er et stort feltutbyggingsprosjekt på delområde B og C hvor ARC arkitektur har stått for all arkitekturprosjektering, fra reguleringsplan til detaljering og oppfølging. Feltene består av lavblokker, rekkehus og eneboliger. Oppdragsgiver, Jadarhus Gjesdal AS, har bygd dette unike området på en samordnet og flott måte. Under utformingen har vi hatt fokus på bokvalitet, variasjon og gode uteområder i et fremtisdrettet boligfelt.

 
Fakta om prosjektet
Årstall:2008-2016
Beliggenhet:Ålgård, Gjesdal kommune
Reguleringsområder31,2 og 80,0 daa
Antall:300 boenheter

Solbakkane felt C

Solbakkane%20feltC%2002
Solbakkane%20feltC%2003
Solbakkane%20feltC%2004
Solbakkane%20feltC%2006
Solbakkane%20feltC%2011
Solbakkane%20feltC%2013
Solbakkane%20feltC%2010
Solbakkane%20feltC%2012
Solbakkane%20feltC%2007
Solbakkane%20feltC%2009
Solbakkane%20feltC%2005
Solbakkane%20feltC%2018
Solbakkane%20feltC%2017
Solbakkane%20feltC%2016
Solbakkane%20feltC%2019

Solbakkane felt B

Solbakkane%20felt%20B%2001
Solbakkane%20felt%20B%2002
Solbakkane%20felt%20B%2003
Solbakkane%20felt%20B%2004
Solbakkane%20felt%20B%2005
Solbakkane%20felt%20B%2006
Solbakkane%20felt%20B%2007
Solbakkane%20felt%20B%2009
Solbakkane%20felt%20B%2008
Solbakkane%20felt%20B%2010
Solbakkane%20felt%20B%2011
Solbakkane%20felt%20B%2012
Solbakkane%20felt%20B%2013
Solbakkane%20felt%20B%2014