Hva er 
ARKITEKTFAGET
Vigdelsvegen 628, fasade sør, skisseprosjekt

Arkitektfaget

Arkitektur handler om å formgi og planlegge menneskers fysiske miljø, som kan være alt fra landskap, til byer, interiører og møbler. Arkitekten har ansvaret for helheten. Det som formgis skal fungere i seg selv og i sine omgivelser. Det er flere ulike faggrupper som må samarbeide for å oppføre en bygning. En arkitekt kan sørge for at alle disse faggruppene arbeider sammen mot et felles mål gjennom sine tegninger, beskrivelser og valg .

I planleggingen står den menneskelige aktiviteten og den fysiske rammen om livet i fokus. Bygningen, rommet og stedet skal fungere godt i den daglige bruken, det skal være estetisk og det skal være behagelig å oppholde seg der. Det er den praktiske virkelighet som formes, men det har også betydning for menneskers sosiale aktivitet og sanselige opplevelser.
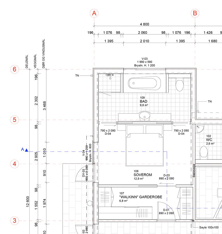
Vigdelsvegen 628, plan 1. etasje, skisseprosjekt

Hvorfor bruke arkitekt?

  • Spesialtilpasning
    Byggverket spesialtilpasses akkurat din eiendom og dine særegne behov.
     
  • Mulighetsstudier
    Har du en eiendom eller byggverk som ikke utnytter sitt fulle potensiale? Vi konkretiserer ideer gjennom tegninger.
     
  • Oppgaveløsning
    Vi finner gode løsninger på komplekse situasjoner.
     
  • Eierskap til prosjektet
    Du kan hente inn og sammenlikne priser fra flere byggmestrer og entreprenører.
     
  • Forutsigbarhet
    Du vet nøyaktig hva du får og det er lett å sammenlikne pristilbud.
     
  • Annenhåndsveri
    En godt utnyttet eiendom,med et arealeffektivt byggverk som er både funksjonelt og estetisk gir som regel en god annenhåndsverdi.
     
  • Helhetlig utforming
    Vi tegner også en utomhusplan som sikrer gode uteareal som spiller på lag med bygningen.
     
  • Profesjonalitet
    Vi tegner i henhold til Plan- og bygningsloven, veiledninger til byggereglene og kommunale reguleringsplaner mm.
     
  • Godt tegningsgrunnlag
    Det koster å bygge feil, og med et godt tegningsgrunnlag og god kontroll på detaljene, så reduseres risikoen for kostbare byggefeil.
     
  • Oppfølgning på byggeplass
    Vi kan være rådgivere i byggeprosessen, delta aktivt i byggemøter og skissere løsninger på utfordringer som dukker opp.
     
  • Estetisk utforming
    Et flott byggverk bidrar positivt til omgivelsene, gir glede til brukerne og gjør bygningen mer attraktiv for utleie eller salg.
     
  • Arealeffektivitet
    Kvadratmeterprisen er for høy til å kaste bort på unødvendig areal.
     
  • Integrering av tekniske føringer
    Vi sørger at alle de tekniske installasjonene blir integrert i bygningen på en estetisk måte.
     
  • Funksjonalitet
    Vi planlegger og tilrettelegger bygninger tilpasset enhver tiltenkt funksjon slik at den tilpasser seg en harmonisk helhet.
Hvordan fungerer
ARBEIDSPROSESSEN
Nordsjøvegen 1801, innledende skisser
Et prosjekt går hovedsakelig gjennom følgende faser;
 Skisseprosjekt, forprosjekt, detaljprosjekt, og byggfase.
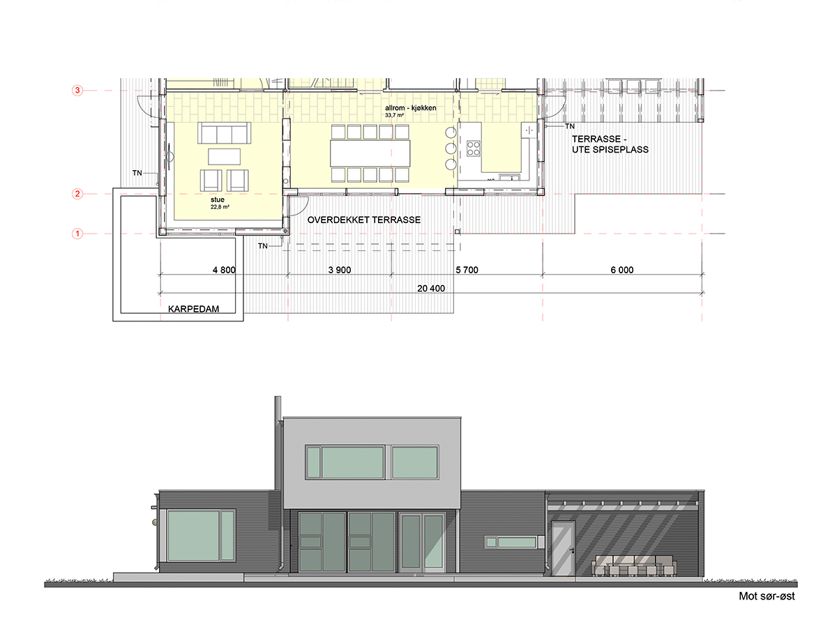
Nordsjøvegen 1801, plan og fasade skisseprosjekt

SKISSEPROSJEKT

  • Innledende møte, programmering og oppgavedrøfting
  • Tomtebefaring med studier og eventuelt oppmåling av eksisterende byggverk
  • Mulighetsstudie og skissearbeider for bygning plassert i et uteanlegg. Ofte vist som manuelle tegninger
  • Presentasjon, drøfting og videreutvikling av skisseforslag sammen med tiltakshaver
  • Eventuelt forhåndskonferanse med kommunen

FORPROSJEKT

  • Prosjektet bearbeides og tegnes på DAK.
  • Videre bearbeidelser og uvikling gjennom samarbeid og drøfting.
  • Beskrives av tegninger, 3D datamodeller og evt. filmanimasjoner. 
  • Søknad om offentlig tillatelse med nabovarsling. 
  • Eventuelt utarbeidelse av salgstegninger for profesjonelle utbyggere.

DETALJEPROSJEKT

  • Arbeidstegninger med planer og snitt i detaljert utførelse. Detaljer for viktige konstruksjoner, dør- vindustegninger mm.
  • Arbeider ofte i samarbeide med rådgivende ingeniører, interiørarkitekter, landskapsarkitekter og div. konsulenter.
  • Utfører arkitektbeskrivelser.
  • Kontrahering. Tilbudsforespørsel og avtaleinngåelse

BYGGEFASE

  • Rådgivning på byggeplass
  • Byggemøter
  • Supplerende detaljer ved behov
  • Rådgivning for utendørsanlegg
  • «Som bygget» -tegninger ved behov
Skisse arkitektur
Arbeidstegning arkitektur

AMBISJONSNIVÅ

En bolig med med få arkitekttimer og enkel detaljering vil naturlig nok få en lavere prosjekteringskostnad enn et gjennomarbeidet prosjekt med høy grad av detaljering.
Men det betyr ikke at sluttprisen nødvendigvis blir lavere når alle entreprenører har gjort sitt arbeid! 

PROSJEKTENDRINGER

Det er viktig å gjøre en grundig prorgammering av prosjektet før man starter tegnearbeidet. I programmeringen må det blant annet legges vekt på størrelser, rombehov med funksjonalitet og spesielle ønsker om kvaliteter.  Her også  til materialer, stil, tilrettelegging av uterom, adkomst, skjerming mot klimapåvirkning, utsikts- og solforhold mm. De store endringer, undersøkelser og justeringer gjøres best i startfasen og prosjektet blir følgelig mer robust etterhvert som man kommer videre i prosessen.



 
Nordsjøvegen 1801
Nordsjøvegen 1801
Finn potensialet gjennom
MULIGHETSSTUDIET
Mulighetsstudie

PLANLEGGERE

I skissefasen gjør vi ulike studier av tomtesituasjon og former prosjektet etter det romprogram byggherren har. Gjennom mange skisser, utformes forslag til planer og bygningsvolum som kritisk gjennomtestes før de blir lagt fram og drøftet. Forslaget formes etter byggherres ønsker, behov og økonomi og skal også reflektere gode kvaliteter for samfunnet rundt. Vi legger vekt på at byggverket skal være robust, tilpasse seg omgivelsene, vakkert å se på og ikke minst ha god funksjonalitet og høy teknisk kvalitet.

MULIGHETSSTUDIE

Har du en eiendom eller en bygning som ikke utnytter sitt fulle potensiale? Eller har du en forretningsidé, eiendom eller bygg som skulle vært vurdert?
Man tror at at noe kan utvikles og bygges, men ikke helt hva som er mulig og lovlig. Vi kan hjelpe deg i startfasen med et enkelt mulighetsstudie, slik at det skapes et bedre beslutningsgrunnlag for veien videre.

KONKRETISERING AV EN IDÉ

På relativt kort tid kan vi lage skissetegninger for hånd som konkretiserer et idéforslag. Isteden for å diskutere løsrevne ideer kan du diskutere et konkret løsningsforslag på eiendommen din som er i henhold til eiendomsgrenser, reguleringsbestemmelser og myndighetskrav. Du kan for eksempel få informasjon om hva det er plass til på eiendommen, byggetekniske utfordringer, adkomstforhold, ulike arealer, antall boenheter, bygningshøyder, volum, utseende og tilpasning til omgivelser.
Mulighetsanalyse