Stemmen Barnehage

Fakta om prosjektet
Årstall:2017
Beliggenhet:Bryne
Størrelse:1620 m2 BRA
Antall:120 til 140 barn
Stemmen barnehage er et prosjekt som ble vunnet av ARC Arkitektur etter konkurranse lagt ut på Doffin i samarbeide med Byggelaget Time og DNF.  
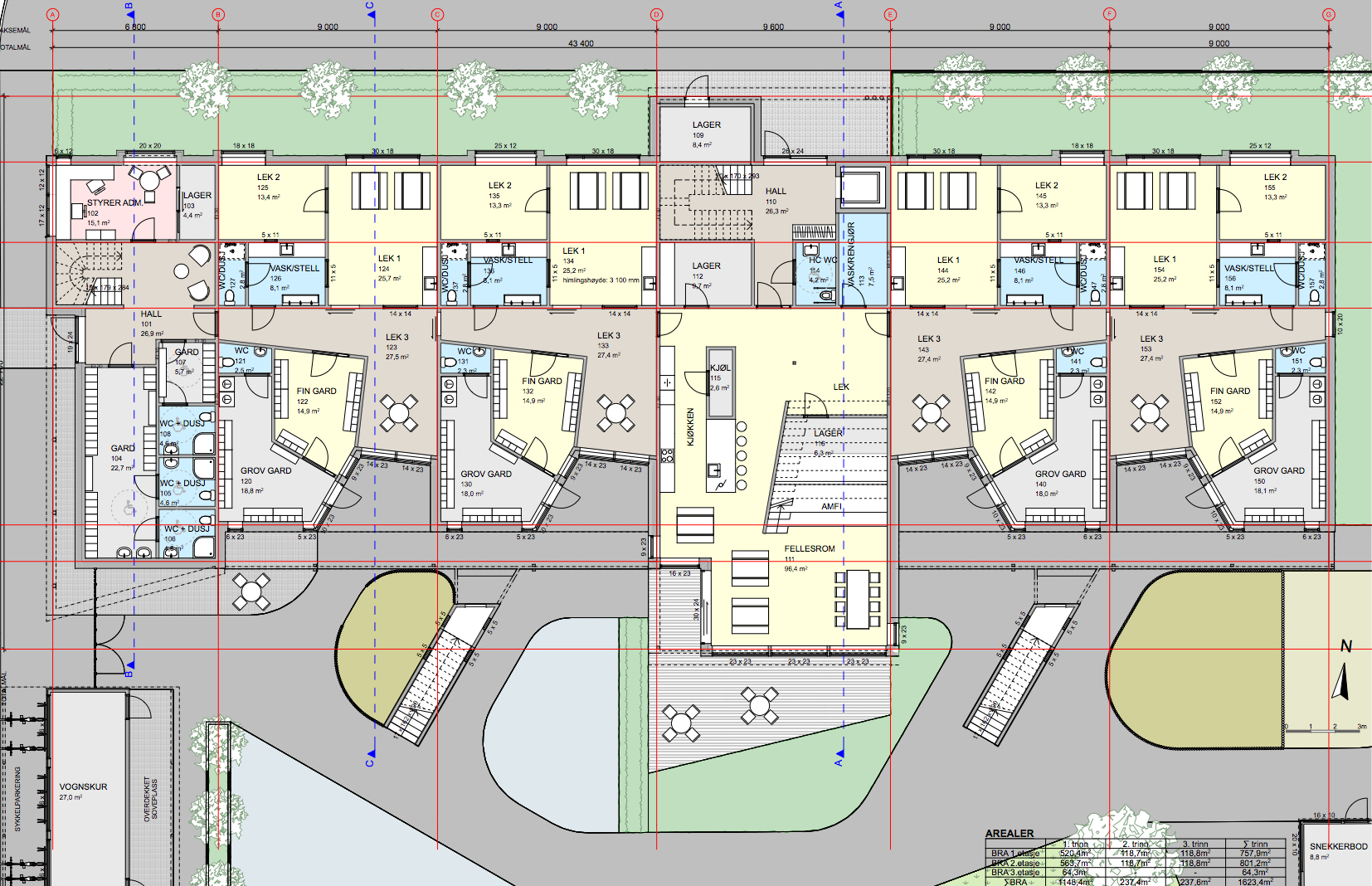
Barnehagen er planlagt i 2 etasjer og utformet som basebarnehage slik at den kan utvides i flere byggetrinn opp til 8 baser og 120-140 barn. Byggets funksjoner er lesbar i bygningens fasader der personalavdelingen, basene og fellesrommene framstår med ulike volum. Det er i planløsningene viet stor oppmerksomhet til kroppslig lek, temarom med mangfoldig innhold og stort fellesrom som utgjør selve knutepunktet for aktiviteten i huset. Fellesrommet knytter begge etasjene sammen via amfiet der barna kan samles til felles lek, sang og drama.
3100-17%20Stemmen%20Barnehage%20plan%201_etasje
Basene er organisert med lik utforming i 2 etasjer og direkte atkomst til sørvendt lekeområde. Småbarnsbasen er knyttet til bakkeplanet, mens 3-6åringene går opp en utvendig trapp til en balkongatkomst.
Universell attkomst er dekket via heis og byggets hovedinngang.
Basene er organisert som egne avdelinger med hver sin grov- og fingarderobe som har dagslys via vindu. Fingarderoben kan da nyttes til lekerom med sittebenker rundt, godt egnet til samlinger ved morgenstund og samtaler mv.
Basen inneholder 3 ulike lekerom som har sine særegne kvaliteter.Her er hovedlekerom på 25m2 med postkjøkken, intimt avstengbart leke/ hvilerom og et lekerom bedre utformet til felles fysisk aktivitet og gruppelek. 
Fra basene finner man lett fram til fellesrommene som blir tilgjengelige for alle.
Personalfløyen vender bort fra de største utvendige lekearealene, men vender seg mot barnehagens hovedatkomst som gir oversikt der besøkende lett finner fram.
Fasade%20s%C3%B8r
Fasade%20nord
3100-17%20Stemmen%20Barnehage%202