Aarresmia. Storgata 35

Fakta om prosjektet
Årstall:2024
Beliggenhet:Bryne
Størrelse:220 m2 BRA
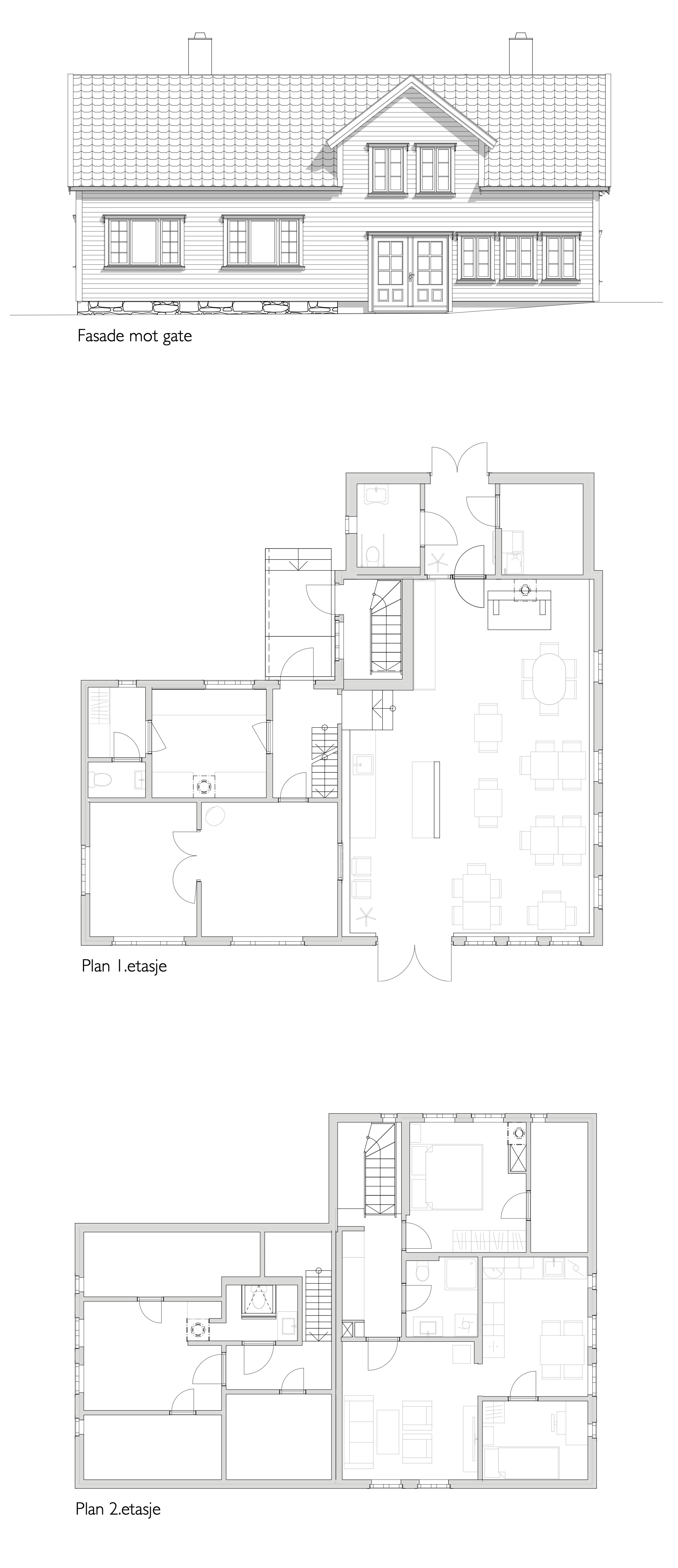
Regulert til spesialområde for bevaring i kulturminneplanen (SOB) for Time kommune. Bygningen er oppført i 2 trinn hvorav vestre del i 1 etasje med loft er oppført i 1891. Tilbygget til mot øst er oppført i 1906 og framstår som et 2 etasjes tilbygg.  Denne delen inneholder smie med port mot Storgata og bolig i 2. etasje.
Mellom 2019- 2024 gjennomgikk huset en omfattende restaurering der alle bygningsdeler fra tømmervegger etasjeskillere og takkonstruksjoner ble gjennoppbygget for å kunne takle en bruksendring fra Smie/ bolig til cafe og bolig. Samtidig som at bygget ble isolert og teknisk oppgradert med dagens krav varme og energi samt ventilasjon har det historiske vern stått sentralt i alt arbeide. Rundt 70% av vinduene er bevart og fått koplet glass til de gamle rammene. Alle originale innerdører, listverk og synlige bjelkekonstruksjoner er bevart, pusset opp og reinstallert. Taket er gjenoppbygget med gjenbruk av original takstein og nyloddede zinkrenner med nedløpsrør. Ca. 25% av den originale dobbeltfalsede trekledningen med staff er gjenbrukt og blandet med ny som gir en fin historisk patina etter at huset er linoljemalt.
Bygget og utendørsområdet er dag nyttet til populær cafe i Bryne sentrum 
Som tiltakshaver Smieparken as mottok vi Time kommunes Byggeskikkspris for 2024 for restaureringsarbeidet av Aarresmia.
Aarresmia og nabohuset Stenslandshuset  som i denne prosessen ble flyttet til stedet var et samlet byutviklingsprosjekt for å redde de siste originale pionerbyggene som ble oppført i Storgata i tiden etter at Jernbane stasjonen ble opprettet i 1878.  Disse byggene stod til forfall langs Storgata i årevis og har gått fra rønner til populære bruksobjekter med en sterk identitetsbyggende historiefortelling om Brynebuens gamle hverdag.
Vi mottok Time kommunes Byutviklingspris for dette arbeidet.
BDAC5B55-EE07-405B-AD15-9A5287E209F6_1_201_a
E1883BCE-808C-4BF7-BD39-4F0A9CE86D86_1_201_a
3170-19%20Planer%20og%20fasader
4BE58B2B-8BC4-45DE-B0FB-ED030F98D490_1_201_a
90C8983E-0541-43EE-A88E-653C77B53F02_1_201_a
CCAA58BE-354F-40D5-9679-EB69029909A1_1_201_a
A3CE9607-F75B-4350-B975-AC57D91FF4EE_1_201_a
832DEACE-E6B3-423E-BDCE-24D0FFD53DAA_1_201_a
47F04916-BC83-4887-BFEC-51D2EB0967BA_1_201_a
3EAF462B-B8EB-47E4-9BEA-9E9167F3627E_1_201_a