Norheimvegen 2

Fakta om prosjektet
Årstall:2021
Beliggenhet:Bryne
Størrelse:160 m2 BRA
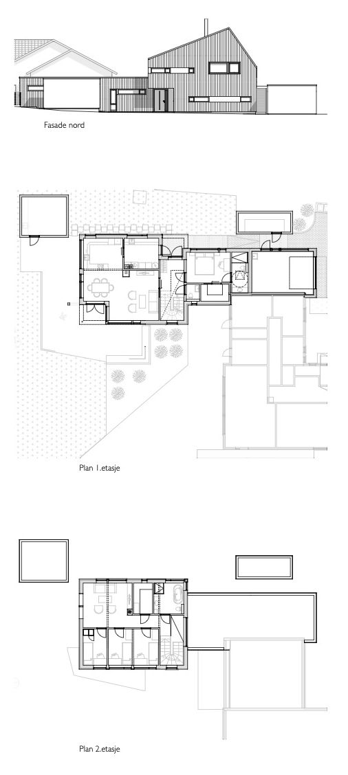
I utkanten av Bryne sentrum ligger eldre boliger med store tomter og doble garasjer som kan utnyttes bedre.
Gjennom rivning av garasjen ble det plass til en moderne bolig med selvstendig tun og uteoppholdsplass. Sammen framstår husene som 2-mannsboliger med eneboligens kvaliteter. Nybyggets eksentriske møne med falset ståltekket tak, stående trekledning med enkle innlistede vindusbånd framstår avdempet, men likevel i spennende kontrast til omgivelsene.
 
090
2765-15%20planer%20od%20fasade
093
092