Ørnahaugen 9

Fakta om prosjektet
Årstall:2021
Beliggenhet:Bryne
Størrelse:455 m2 BRA
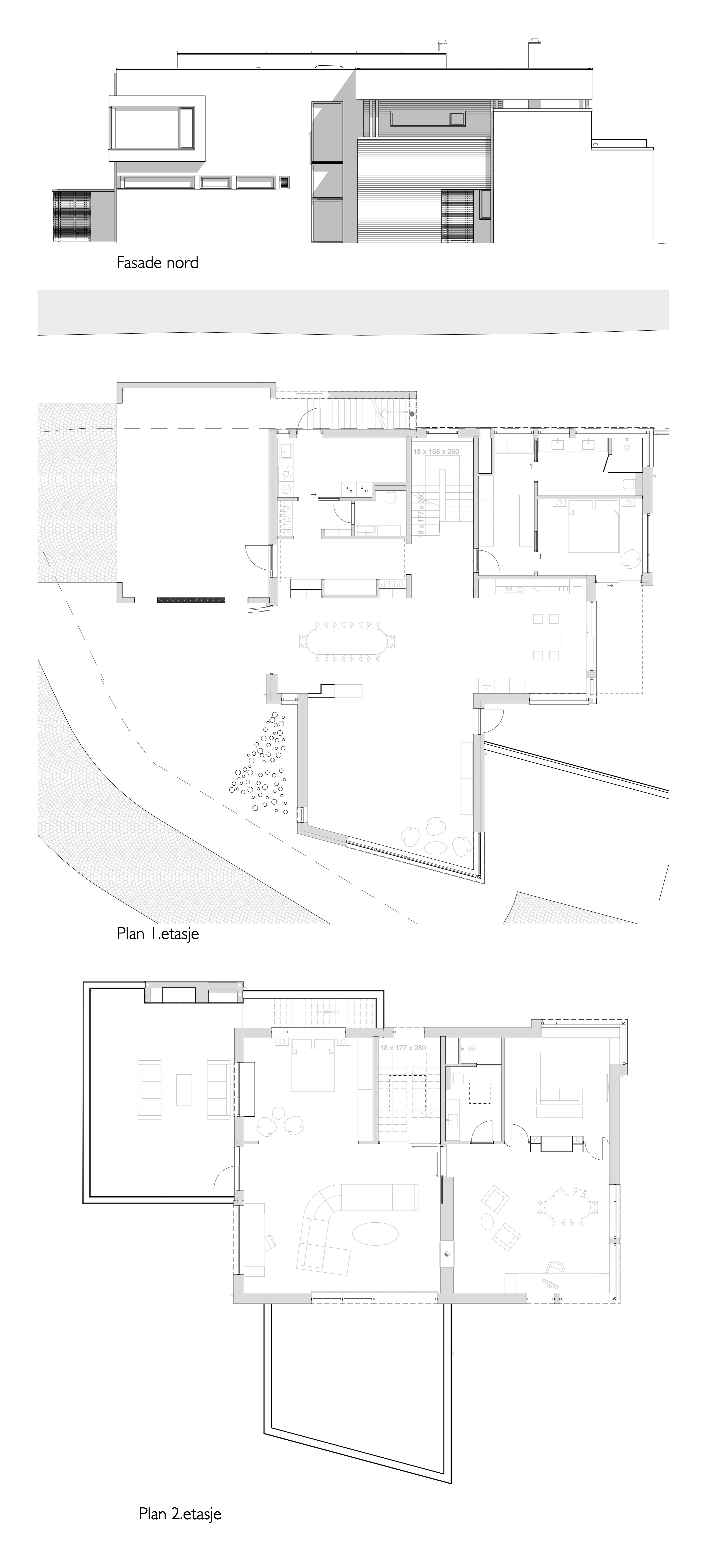
På den veletablerte Brynehaugen ligger en villa mot grøntarealer med storfin utsikt mot nord, sør og øst.
Boligen er bygget i 3 etasjer der 1. etasje er innskutt i bakken og hovedplanet er formet som tilgjengelig bolig med entre, stue, kjøkken og mastersoverom på samme plan. I 3. etasje mot vest finner man stor overdekket veranda med rytterlys og utepeis. Etasjen rommer stue kontor og soverom med utsikt mot jærskapet i nord. Underetasje har garasje med trimrom spa- avdeling og vinrom.
Huset er bygget med grunnmur og gulv i 1 etasje av betong mens 2.etasje og alle yttervegger i trekonstruksjon ned STO- puss. Tak er bygget som kompakttak med bæring av stålplater.
Huset framstår bygget med gode materialer, gjennomarbeidede planer med detaljer og fremragende håndverksmessig kvalitet fra jærske håndverkere.
 
020
021
Planer%20og%20fasade
024
028
030
031