Hytte i kulturvernområdet på Andabeløy

Fakta om prosjektet
Årstall:2017
Beliggenhet:Andabeløy
Størrelse:66,4m2 BRA
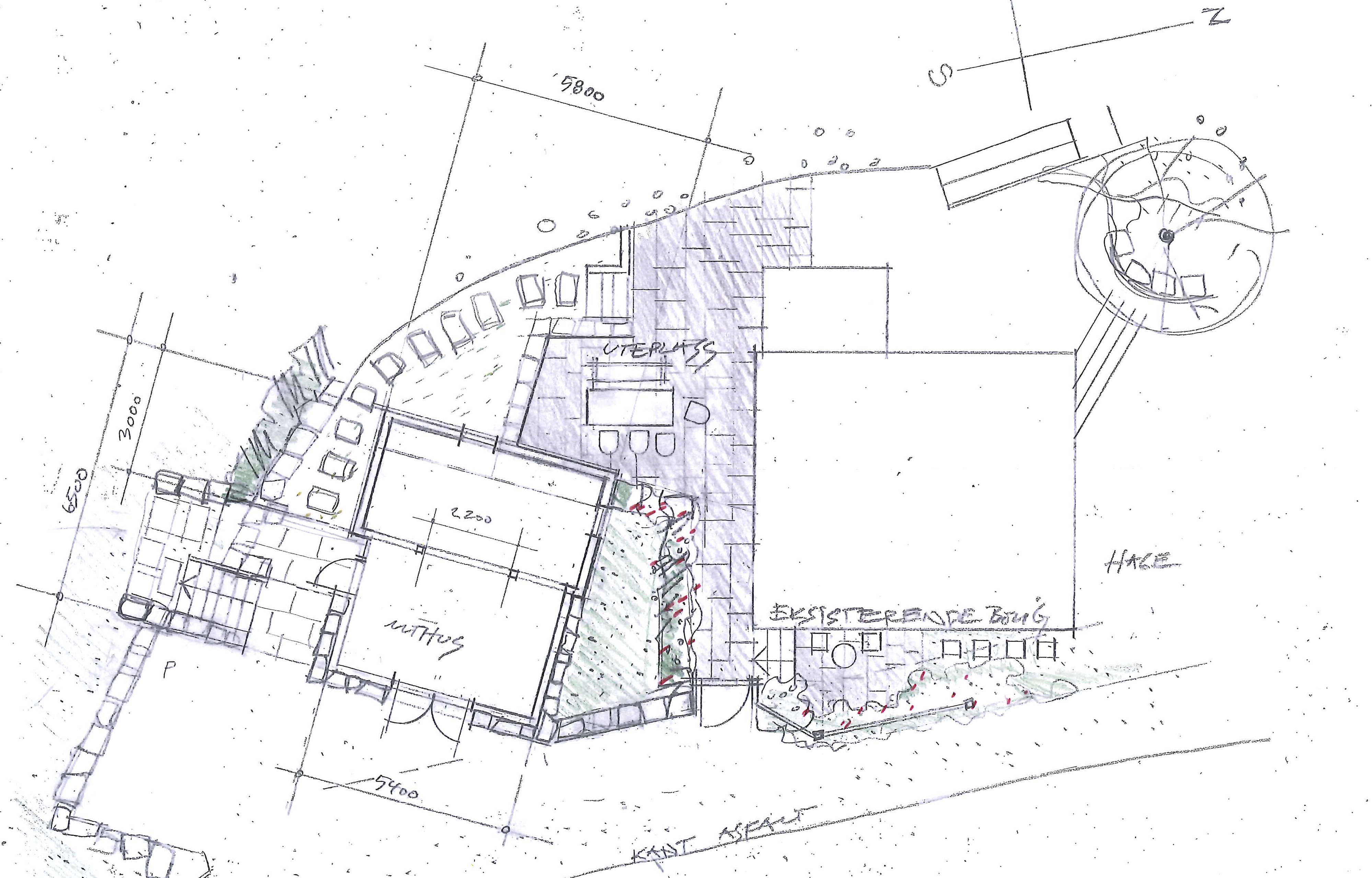
Familien kjøpte sin fritidsbolig i kulturvernområdet på Andabeløy ved Flekkefjord, men trengte mer plass og ønsket barnestue, soverom og lagringsareal.
For å skape en stilhistorisk sammenheng med det godt bevarte bolighuset i sveitserstil fra 1900-tallet, foreslo ARC Arkitektur as å rive eksisterende garasjebygning fra 1980- tallet  og gjenoppbygge låvebygningen som en gang stod der.  
Vi skapte mer meningsfylte uterom mot hovedhuset for å skape en møblerbar uteplass  for å slippe solen inn fra tidlig ettermiddag. Dette tiltaket skapte mer brukbare uteområder som er viktige på fritidseiendommer der det i tillegg ble lagt mer til rette for  grønnstruktur. 

Dispensasjonssøknaden ble positivt  behandlet i Flekkefjord kommune med fylkesmannen i Vestagder sin endelige godkjennelse.
Fasade
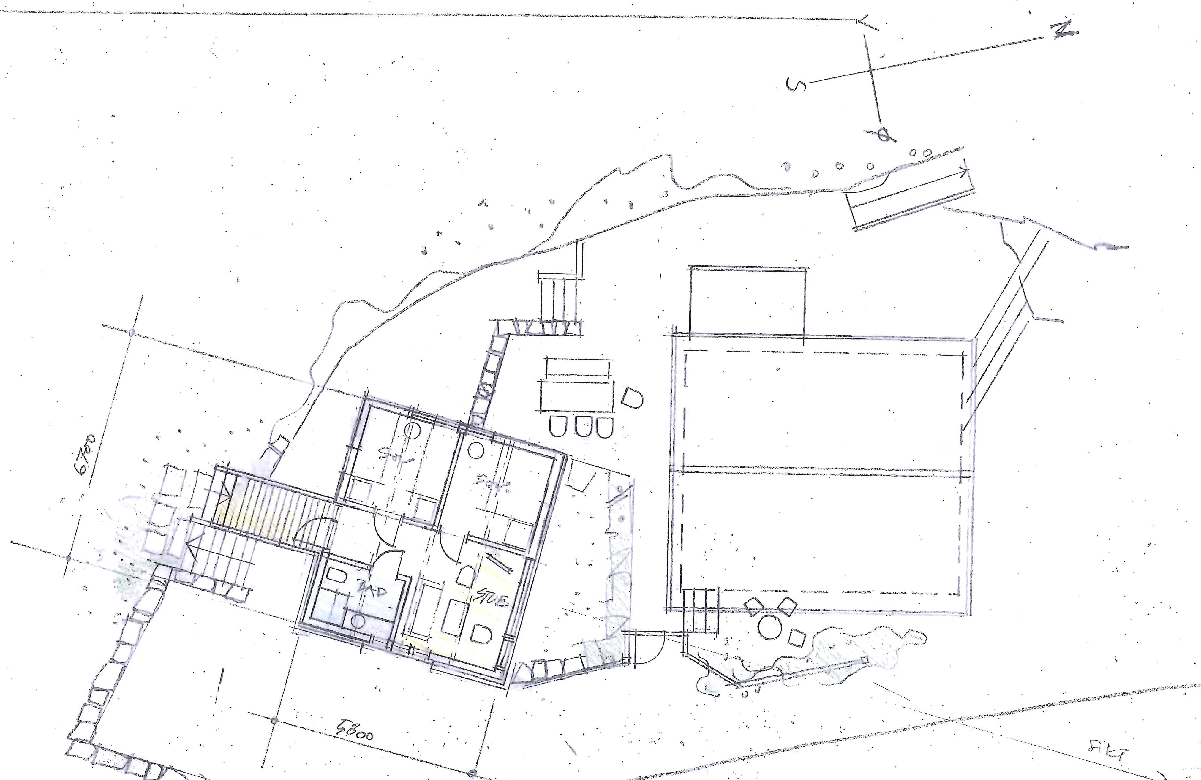
Plan%201_etasje
Oppholdsrommene får en atkomst via planlagt låvebru knyttet til en høyere terrengfor­masjon i sør. Løsningen egner seg godt som atkomst og rømning direkte utenfra og forsterker sammen med tilhørende opplett låvens karakter. 
2_etasje
image2
For å beholde låvebygningens lukkede fasadeutrykk, er vindusformater redusert og glass skjules bak kledningsribber på særegen måte.
DSC_0220
Opprinnelig garasje som var plassert hvor den gamle låven en gang stod var helt fremmed for kulturmiljøet og skapte ikke den beste rammen for feriestedet til familien fra Jæren.
image1
Låvebygning bygges med trekonstruksjon med låvekledning og natursteinsmurer på eksponerte deler av 1.etasje. Taktekking skal være med enkeltkrummet teglstein av gammel type og bruk av begrenset antall vinduer. De utføres med koplet glass og kittfalssprosser.
Snitt%20a-a
image4